Building Legacy Homes That Last

At Barnett Built Home, we believe a house should be more than walls and a roof โ€” it should be a lasting legacy. Every home we build is rooted in Texas pride, crafted with precision, and designed to stand strong for generations.

Our Standard of Quality

We donโ€™t cut corners. Every Barnett Built Home includes:

  • ZIP System sheathing for superior weather protection

  • Fully Insulated Walls, not only the exterior but interior walls as well

  • Durable metal roofing built to withstand the elements

  • Advanced comfort with ERV technology in our HVAC systems

  • Solid surface countertops for timeless beauty and easy care

  • Custom cabinetry with all soft-close doors and drawers

Built for Real Life

Our homes are energy-efficient, low-maintenance, and thoughtfully designed to simplify everyday living. From open layouts to smart storage, every detail is chosen to make your home both functional and enduring.

A Legacy of Craftsmanship

We build with integrity, pride, and a commitment to quality that reflects our Texas roots. Whether youโ€™re creating a family homestead, an investment property, or your forever home, Barnett Built delivers craftsmanship you can count on โ€” today, tomorrow, and for decades to come.

Explore customizable home plans designed to fit your lifestyle and legacy.

A modern black house with a metal roof, attached to a garage with two brown doors, surrounded by a green lawn and trees in the background.
Architectural floor plan of a house showing a porch, living room, kitchen/dining area, master bedroom with a bathroom, two additional bedrooms, a laundry room, pantry, bathroom, garage, and closets.

๐Ÿก 1800 Sq Ft Farmhouse | 3 Bed ยท 2.5 Bath ยท Garage

Step into timeless Texas charm with this thoughtfully designed 1800 sq ft farmhouse โ€” where rustic elegance meets modern functionality. Featuring a spacious open-concept layout, this 3-bedroom, 2.5-bath home is ideal for families, retirees, or anyone seeking comfort with character.

โœจ Key Features:

  • Vaulted Ceilings in the kitchen, dining, and living areas for an airy, expansive feel

  • Generous Living Room (20'-6" x 18'-1") perfect for gatherings and relaxing evenings

  • Chefโ€™s Kitchen & Dining (20'-6" x 10'-4") with walk-in pantry (9'-0" x 5'-0") for seamless hosting

  • Master Suite Retreat (15'-0" x 13'-9") with oversized walk-in closet (13'-8" x 5'-2") and private bath

  • Two Additional Bedrooms (12'-0" x 11'-6") with dedicated closets and shared full bath

  • Laundry Room (8'-4" x 5'-0") and Half Bath for added convenience

  • Attached Garage (23'-8" x 23'-4") with direct access to the home

  • Covered Front Porch (60'-0" x 8'-0") โ€” a perfect spot for morning coffee or evening sunsets

๐Ÿ› ๏ธ Built for Real Life:

  • 9' ceilings throughout for spacious comfort

  • Smart layout for efficient flow and privacy

  • Ideal footprint for rural lots, rental builds, or legacy homesteads

Starting at $315,000.00 built on your land. Price excludes: utilities to the house (water, electric, sewer etc.) and driveway work.

Modern single-story house with white exterior walls, a black roof, wooden accents, a front porch with lighting, a stone foundation, surrounded by landscaping and a curved driveway, under a cloudy sky.
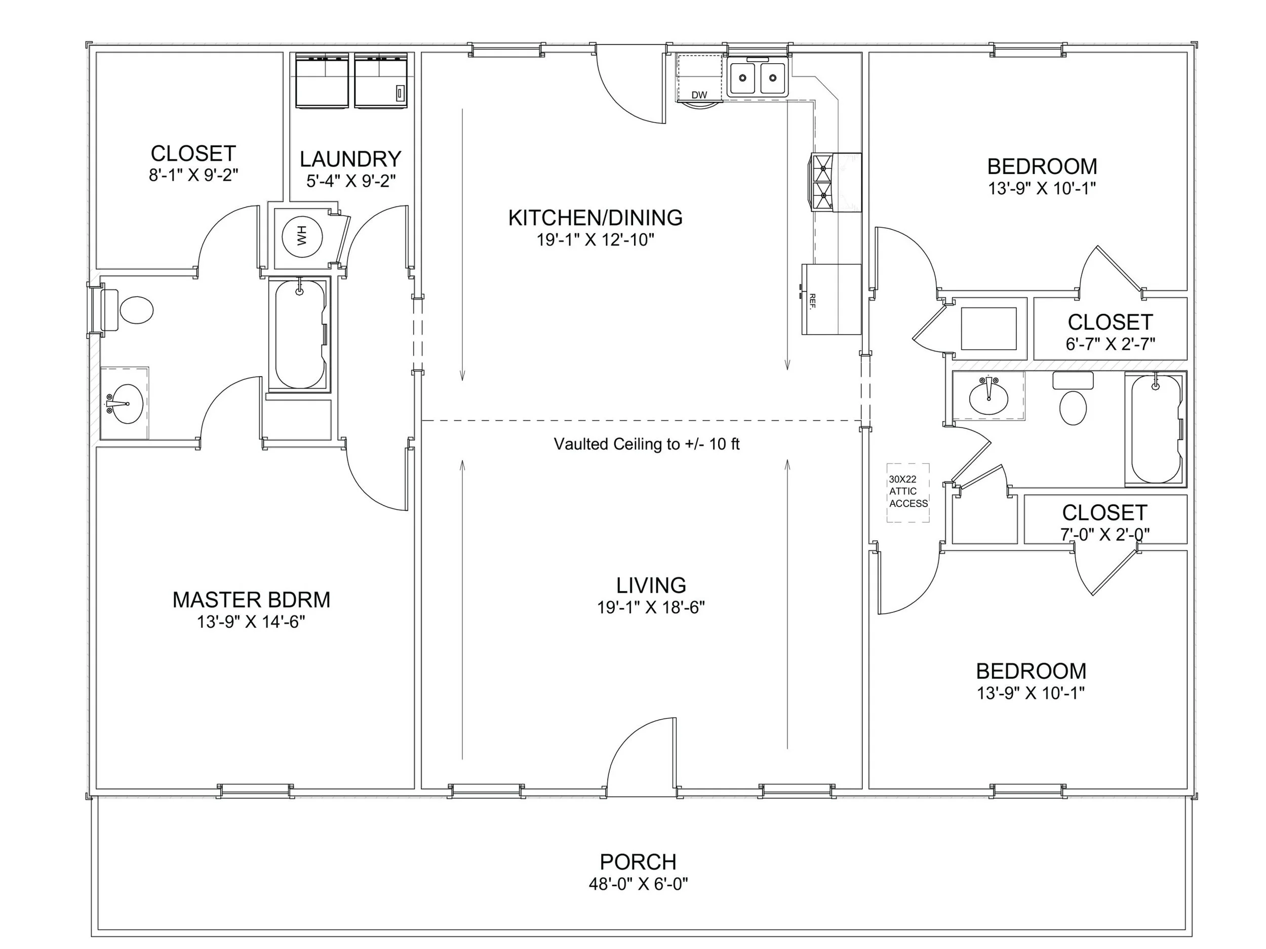
Floor plan of a house with labels and dimensions for rooms including porch, living room, kitchen/dining, master bedroom, two additional bedrooms, bathrooms, laundry, closets, attic access, and doorways.

๐Ÿก 1536 Sq Ft Farmhouse | 3 Bed ยท 2 Bath

This 1,536 sq ft farmhouse offers the perfect blend of rustic charm and modern efficiency โ€” designed for families, retirees, or rental builds that prioritize comfort, flow, and timeless appeal.

๐Ÿชต Signature Features:

  • Vaulted Living Room (19'-1" x 18'-6") with 10 ft ceilings for an open, airy feel

  • Spacious Kitchen & Dining (19'-1" x 12'-10") ideal for everyday meals and weekend gatherings

  • Master Suite (13'-9" x 14'-6") with a large walk-in closet (8'-1" x 9'-2") and private bath

  • Two Additional Bedrooms (13'-9" x 10'-1") with dedicated closets and shared full bath

  • Laundry Room (5'-4" x 9'-2") tucked conveniently near the bedrooms

  • Covered Front Porch (48'-0" x 6'-0") for morning coffee, evening sunsets, and neighborly chats

  • Attic Access for added storage and long-term flexibility

๐Ÿ”จ Built for Real Life:

  • 9' ceilings throughout with vaulted accents

  • Efficient footprint with zero wasted space

  • Ideal for rural lots, starter homes, or investment properties

Starting at $250,000.00 built on your land. Price excludes: utilities to the house (water, electric, sewer etc.) and driveway work.

A black house with a metal roof in an open field, with five windows and a white front door, under a cloudy sky.
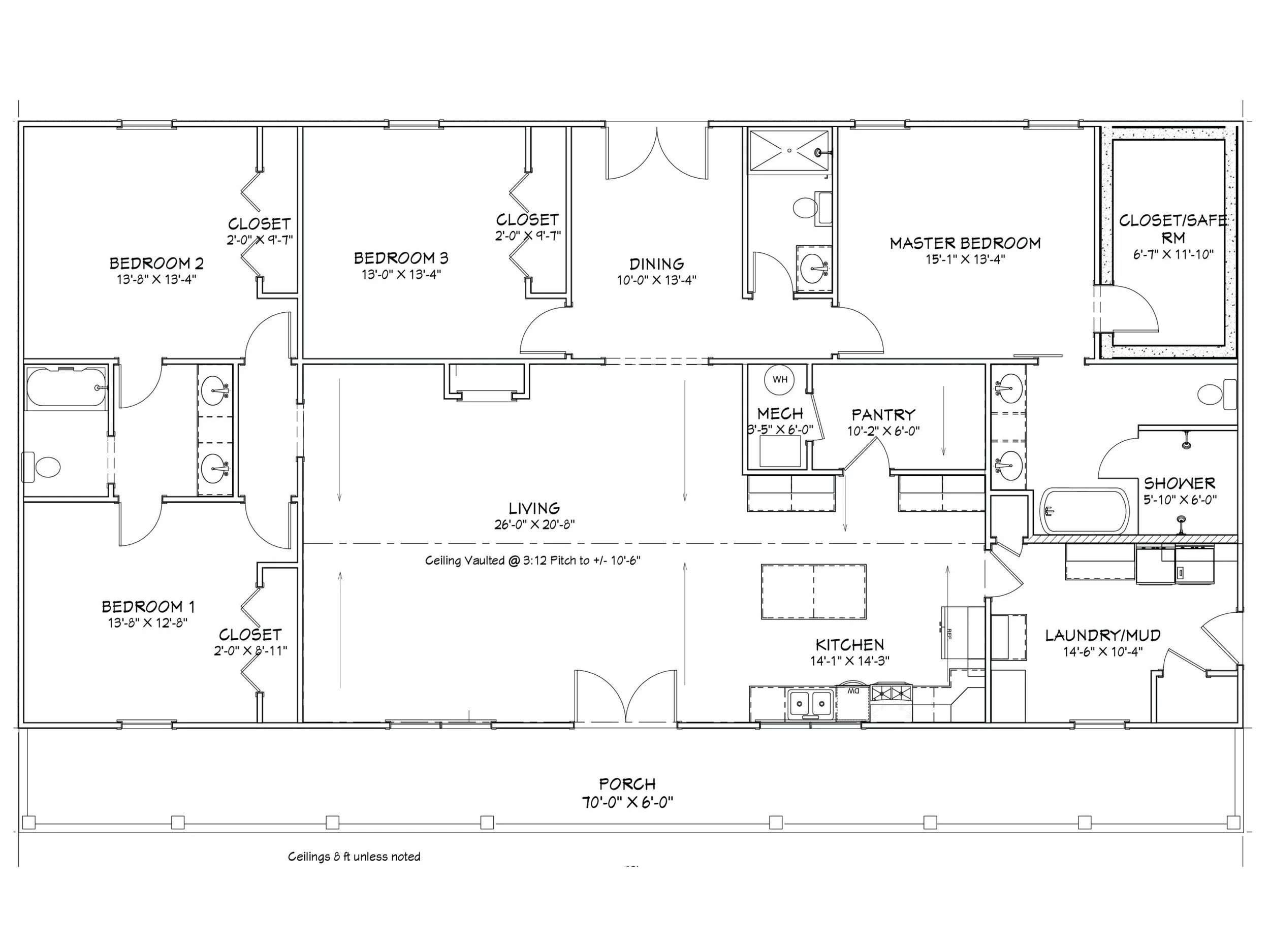
Floor plan of a house showing bedrooms, living room, kitchen, bathrooms, laundry, pantry, porch, and closets.

๐Ÿก 2181 Sq Ft Custom Farmhouse | 4 Bed ยท 3 Bath ยท Laundry/Mud Room

This 2,181 sq ft custom farmhouse is built for real life โ€” blending wide-open living spaces with private retreats, smart storage, and timeless Texas charm. With 4 bedrooms, 3 full baths, and a dedicated laundry/mud room, itโ€™s ideal for growing families, multi-generational living, or legacy builds that prioritize comfort and functionality.

๐Ÿชต Signature Features:

  • Expansive Living Room (26'-0" x 20'-8") with vaulted ceilings for a grand, open feel

  • Spacious Kitchen (14'-1" x 14'-3") with walk-in pantry (10'-2" x 6'-0") and adjacent dining room (13'-0" x 13'-4") for seamless hosting

  • Master Suite (15'-1" x 13'-4") with private bath and oversized walk-in closet/safe room (6'-7" x 11'-0")

  • Three Additional Bedrooms (13'-8" x 12'-8", 13'-8" x 13'-4", and 13'-0" x 13'-4") each with large closets and easy access to full baths

  • Dedicated Laundry/Mud Room (14'-6" x 10'-4") with built-in storage and exterior access โ€” perfect for boots, gear, and everyday cleanup

  • Covered Front Porch (70'-0" x 6'-0") for morning coffee, evening sunsets, and neighborly chats

๐Ÿ”จ Built for Real Life:

  • 8' ceilings throughout with vaulted accents in the living area

  • Three full bathrooms with double vanities and thoughtful layout

  • Mechanical room, attic access, and smart closet placement for long-term flexibility

  • Ideal for rural lots, family homesteads, or high-end rental builds

Starting at $359,000.00 built on your land. Price excludes: utilities to the house (water, electric, sewer etc.) and driveway work.

A modern white house with a blue metal roof, surrounded by a green lawn and trees in the background.
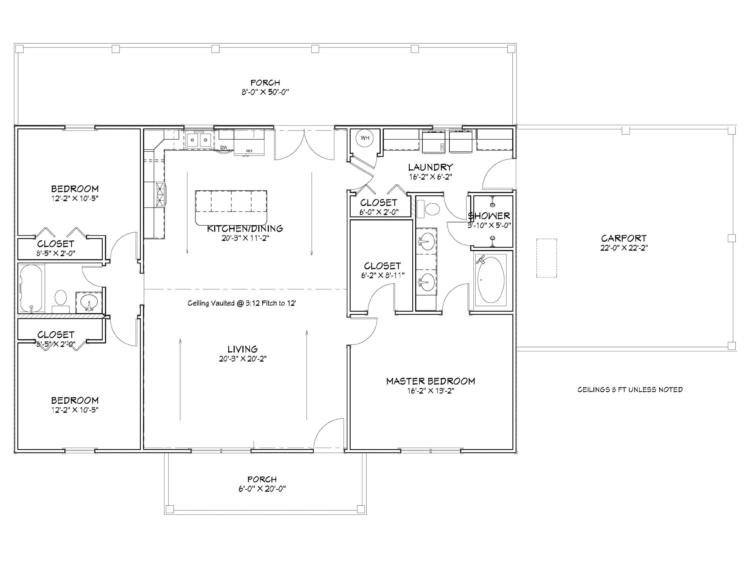
Floor plan of a house showing bedrooms, bathrooms, a kitchen/dining area, living room, laundry, closets, porches, a carport, and a garage.

๐Ÿก 1600 Sq Ft Farmhouse | 3 Bed ยท 2 Bath ยท Carport

This 1,600 sq ft farmhouse is built for comfort, connection, and country living โ€” with wide-open spaces, generous porches, and a layout that flows effortlessly from front to back. Whether you're building a family home, a rental retreat, or a legacy homestead, this plan delivers timeless style and real-world functionality.

๐ŸŒฟ Signature Features:

  • Vaulted Living Room (20'-3" x 20'-2") with a vaulted ceiling for an open, airy feel

  • Spacious Kitchen & Dining (20'-3" x 11'-2") with modern appliances and easy access to both porches

  • Master Suite (16'-2" x 13'-2") with private bath and dual closets for comfort and storage

  • Two Additional Bedrooms (12'-2" x 10'-5") with dedicated closets and shared full bath

  • Laundry Room (16'-2" x 6'-2") with exterior access โ€” perfect for muddy boots and work gear

  • Covered Rear Porch (8'-0" x 50'-0") ideal for outdoor dining, relaxing, or entertaining

  • Front Porch (6'-0" x 20'-0") for morning coffee and neighborly chats

  • Attached Carport (22'-0" x 22'-2") for shaded parking and easy entry

๐Ÿ”จ Built for Real Life:

  • 8' ceilings throughout with vaulted accents in the living area

  • Smart layout with minimal wasted space

  • Ideal for rural lots, rental builds, or family homes with outdoor lifestyle

Starting at $270,000.00 built on your land. Price excludes: utilities to the house (water, electric, sewer etc.) and driveway work.

A modern house with brown exterior siding, white window frames, and a green metal roof, surrounded by green grass and trees in the background.
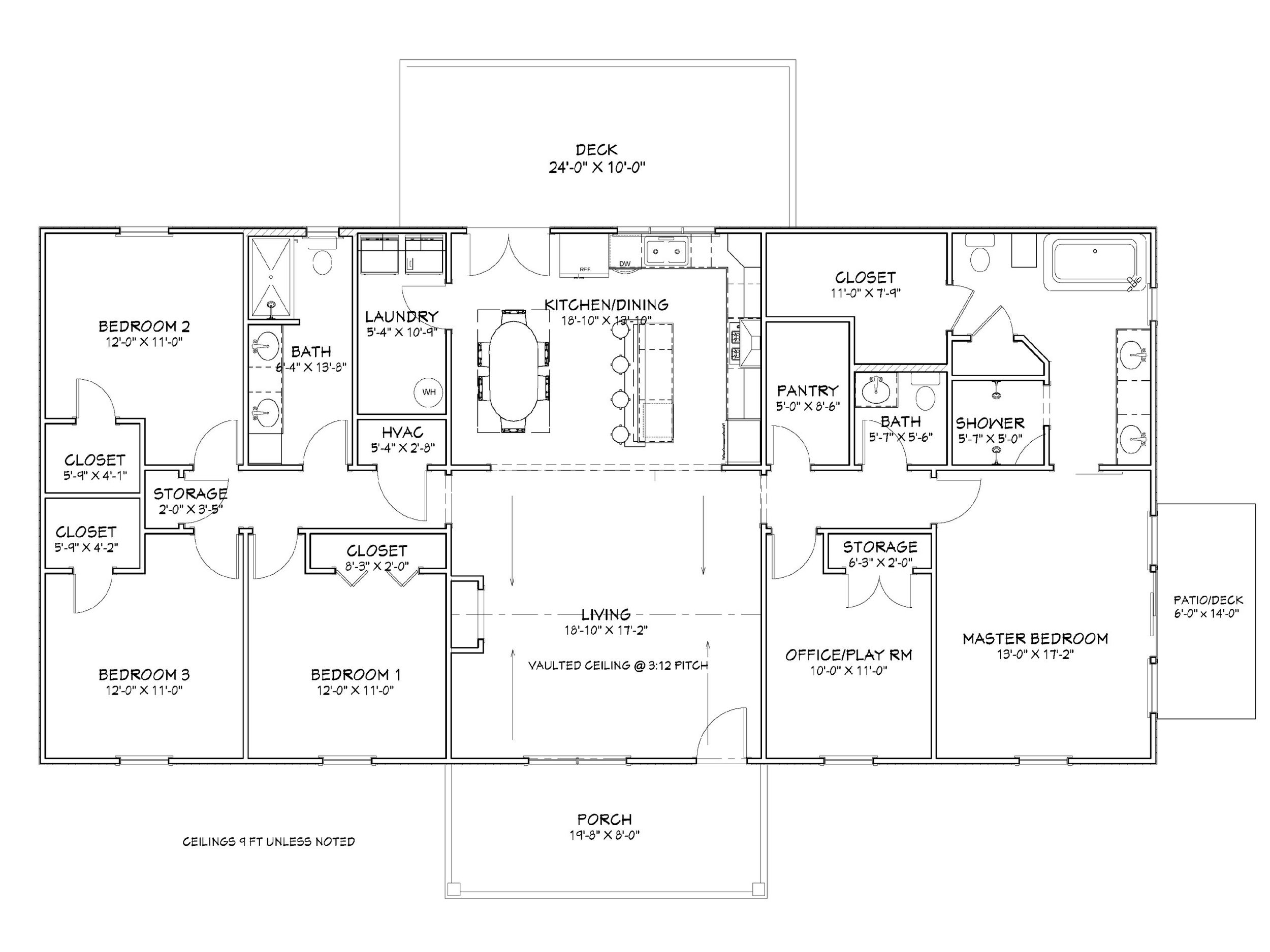
Floor plan of a house showing three bedrooms, two bathrooms, kitchen, living room, office/playroom, laundry, storage, and outdoor deck and patio area.

๐Ÿก 2176 Sq Ft Custom Farmhouse | 5 Bed ยท 2.5 Bath ยท Private Master Suite

This 2,176 sq ft custom farmhouse is designed for flexibility, privacy, and everyday comfort โ€” offering 5 bedrooms, 2.5 baths, and a true master suite with its own private entrance. Whether you're building for a large family, multi-generational living, or rental potential, this layout delivers space, flow, and long-term value.

๐Ÿชต Signature Features:

  • True Master Suite (13'-0" x 17'-2") with private exterior entrance, dual closets, and dedicated bath/shower โ€” ideal for owner privacy, guest quarters, or future rental flexibility

  • Open-Concept Living Room (18'-10" x 17'-2") with vaulted ceiling for a spacious, elevated feel

  • Generous Kitchen & Dining Area (18'-10" x 10'-8") with walk-in pantry and direct access to outdoor living

  • Three Additional Bedrooms (each 12'-0" x 11'-0") with ample closet space โ€” perfect for kids, guests, or home offices

  • Office/Play Room (10'-0" x 11'-0") for added versatility

  • Two Full Bathrooms plus a central half bath for guests and high-traffic areas

  • Laundry Room (5'-4" x 10'-4") with adjacent HVAC and storage

  • Covered Porch (19'-8" x 8'-0") and Dual Decks (24'-0" x 10'-0" and 6'-0" x 14'-0") for outdoor entertaining, relaxing, and Texas sunsets

๐Ÿ”จ Built for Real Life:

  • 9' ceilings throughout with vaulted accents

  • Smart layout with minimal wasted space

  • Ideal for rural lots, family homesteads, or investment builds with rental flexibility

Starting at $375,000.00 built on your land. Price excludes: utilities to the house (water, electric, sewer etc.) and driveway work.

Front view of a modern house with a blue roof, cream-colored vertical siding, and a small front porch with steps, surrounded by a well-maintained lawn and trees in the background.
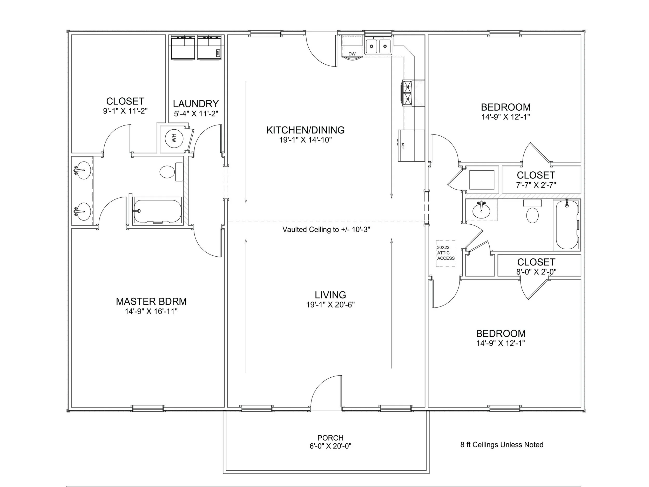
Floor plan of a house showing a porch, living room, kitchen/dining area, three bedrooms, two bathrooms, laundry room, and closets, with labeled dimensions.

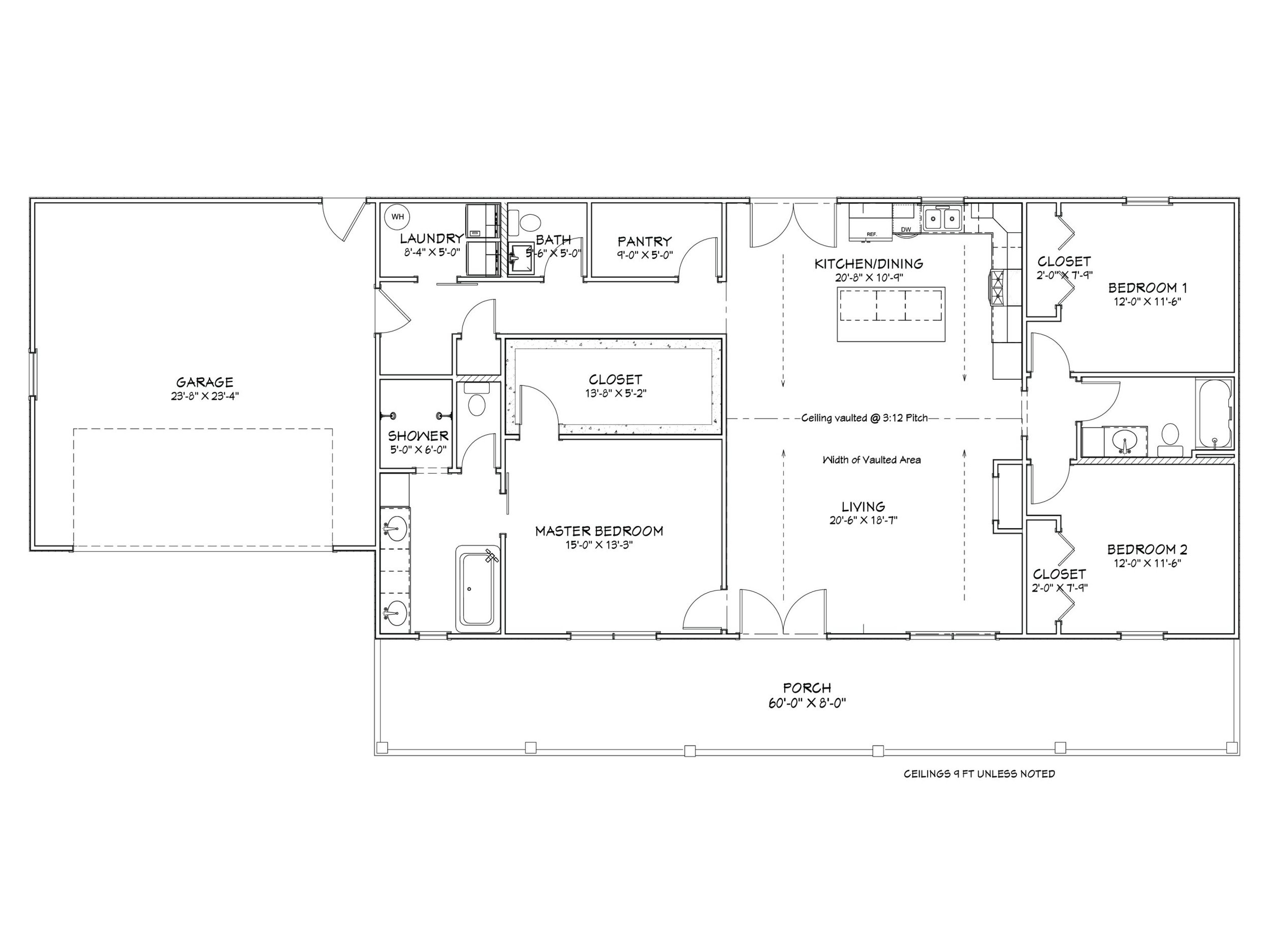
๐Ÿก 1800 Sq Ft Custom Farmhouse | 3 Bed ยท 2 Bath

This 1,800 sq ft custom farmhouse is designed for comfort, flow, and timeless appeal โ€” offering 3 bedrooms, 2 full baths, and a layout that balances open living with private retreat. Whether you're building a family home, retirement haven, or high-end rental, this plan delivers everyday functionality with bold Texas charm.

๐Ÿชต Signature Features:

  • Vaulted Living Room (19'-1" x 20'-6") for an expansive, elevated feel

  • Spacious Kitchen & Dining Area (19'-1" x 14'-10") with seamless flow and ample room for hosting

  • Master Suite (14'-9" x 16'-11") with dual-sink bathroom and oversized walk-in closet (9'-1" x 11'-2")

  • Two Additional Bedrooms (14'-9" x 12'-1") with easy access to a shared full bath

  • Laundry Room (5'-4" x 11'-2") tucked near the master for convenience

  • Covered Front Porch (6'-0" x 20'-6") for morning coffee, evening sunsets, and neighborly chats

  • Attic Access for long-term storage and flexibility

๐Ÿ”จ Built for Real Life:

  • 8' ceilings throughout with vaulted accents in the living area

  • Smart layout with minimal wasted space

  • Ideal for rural lots, family builds, or investment properties

Starting at $295,000.00 built on your land. Price excludes: utilities to the house (water, electric, sewer etc.) and driveway work.